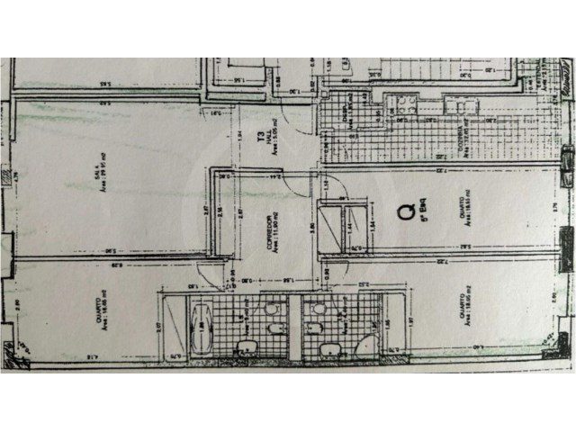
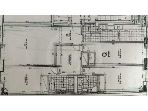
Apartamento de tipologia T3, com uma área bruta total de 230m² que compreende a área bruta privativa de 148 m².
Com a frente voltada a sudeste, o imóvel em apreço tem uma muito bem escalonada separação das zonas social e privada com duas casas de banho (uma, em suíte); a cozinha fica equipada com fogão, forno e máquinas de lavar louça e roupa.
Ambas as fachadas do andar são servidas por duas amplas varandas, contemplando, ainda, sistema de vidros duplos nas janelas, porta de segurança e videoporteiro.
Considera, ainda, dois lugares de estacionamento na garagem e uma arrecadação, também na cave.
O prédio, de 2004, possui dois elevadores e a fracção em análise é no quinto e último andar.
As despesas de condomínio associadas ao apartamento são de 56€ por mês; o apartamento está arrendado até ao final do ano.
Situando-se a poucos metros do Arena Shopping e junto da paragem de autocarro, o apartamento beneficia da proximidade da cidade de Torres Vedras, junto da saída norte da autoestrada A8, das belas e límpidas praias da região e está a meia hora de Lisboa.
Também a segurança da zona, a hospitalidade das gentes, a vasta oferta comercial e industrial e a multiplicidade de serviços – clínicos, escolares, artísticos, desportivos e de lazer – a par da famosa gastronomia, fazem deste imóvel um investimento seguro, quer para habitação própria ou para uma eventual rentabilização futura.
Não perca esta oportunidade e venha viver com segurança e qualidade: marque, já, a sua visita!
WH21090-127
Compare listings
Comparar